
CENTRE CULTUREL MASSENA - France
Projet de fin d’étude,
École de la ville et des territoires de Marne-la-vallée,
Période : Octobre - Février 2016,
Localisation : Paris
Le centre culturel Massena est situé à Paris sur le terrain proche de l’ancienne gare Massena.
Cette gare occupe une position stratégique dans Paris Rive Gauche. Son architecture et sa localisation en font un lieu unique d’articulation entre le passé et la modernité de la ville.
La zone se trouvant autour du site de la gare incarne depuis une vingtaine d’année, l’image d’un nouveau quartier latin. Cette zone englobe, la Bibliothèque National de France, des bureaux, commerces, activités artistiques, culturelles et de loisirs, universités, logements, équipement publics...
L’idée d’un centre culturel découlait donc d’une analyse poussée sur les capacités futures du site, ainsi que sur les besoins potentiels du nouveau quartier Massena.
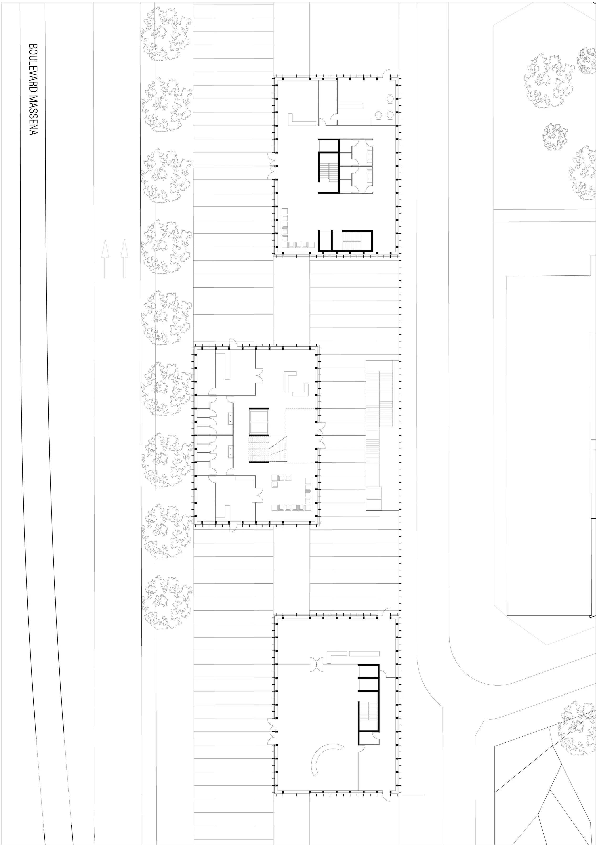
Le projet se développe sur un axe Nord-Est - Sud-Ouest parallèle à la rue Regnault ainsi qu’au boulevard Massena. De part sa topographie et son ancien usage, le terrain jouit d’une situation particulière en surplomb sur les deux axes.
La composition volumétrique du nouveau bâtiment culturel vise à retrouver une accroche urbaine ainsi que des proportions moins domestiques, une simplicité capable de régler la complexité du site, réglant les problématiques liées au site, au rapport avec l’existant, à la topographie ainsi qu’à la fonctionnalité.
Le centre culturel est composé de trois volumes intégrant au premier plan un musée, au second une bibliothèque et au dernier plan un conservatoire de musique. Chaque volume reprend le même langage architectural tout en s’adaptant au programme qu’ils accueillent.